Casa Namu / [i]da arquitectos
Curadoria de Matheus Pereira

Descrição enviada pela equipe de projeto. O lugar, a poucos metros da Lagoa de Óbidos, é caracterizado por árvores de Pinheiro Manso e pela densa vegetação da Reserva Ecológica Natural a Sul, criando um forte sentimento de encerramento natural. O projeto procura enfatizar esta especificidade natural do lugar, orientando os espaços principais da casa para Sul, de forma a criar uma forte relação com a paisagem e permitir receber a melhor luz solar. Do lado oposto, localizam-se os espaços mais reservados da casa, com um grau de privacidade maior. Esta configuração define duas zonas distintas, a diurna e a noturna.



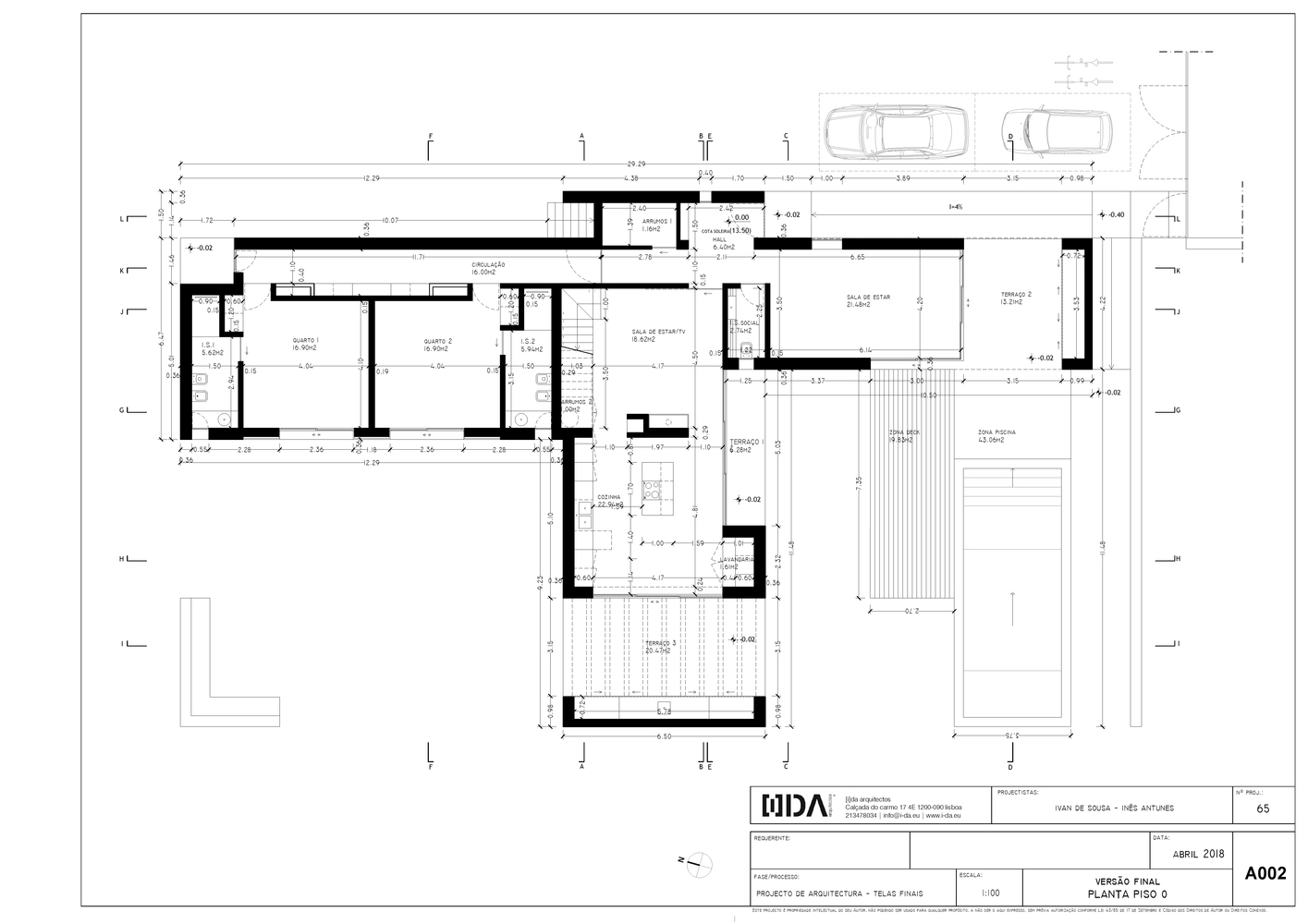
A zona diurna é composta pelos espaços sociais, como as salas e a cozinha, com grandes superfícies de vidro que permitem o prolongamento visivo e funcional dos espaços interiores para as áreas exteriores. Nesta zona, os espaços da habitação organizam-se num único piso. A zona noturna é composta pelos quartos, escritório e ginásio, distribuídos em dois pisos. A casa, circundada pela grandeza da natureza, protege quem a vive e visita através de uma composição de volumes, e utiliza a matéria dominante do lugar, a madeira.

A entrada principal é marcada por um rasgo horizontal na extremidade do volume, enquanto a entrada tardoz é marcada por um rasgo vertical, ambas revestidas em ripado de madeira de natural. O jardim Sul, com a piscina e as zonas de estar públicas, transforma-se num verdadeiro pátio resguardado do vento, de um lado a cortina de vegetação, do outro a arquitetura que abraça e protege o espaço. O jardim Norte dá lugar a aromas e sabores, uma horta, um pomar, flores autóctones e especiarias várias. A cobertura, um grande terraço projetado para a paisagem, juntamente com um pequeno pátio, definem os espaços exteriores e intimistas do piso superior.

Arquitetos: [i]da arquitectos
Localização: Óbidos, Portugal
Arquitetos Responsáveis: Ivan de Sousa, Inês Antunes
Área: 272.0 m2
Ano do projeto: 2018
Fabricantes: EGGER, Sanitana, Schüeco, Samsung, Banema, Oli, AEG, Bosch
Equipe de Projeto: Ivan de Sousa, Inês Antunes
Engenharia: Projeto Engenheiros Associados
Paisagismo: Inês Antunes
Construção: Construções Luís Jorge
Custo: 200.000,00 Euros
Área Do Lote: 925 m²
Área De Implantação: 252 m²
Disponível em: www.archdaily.com.br/br/918027. Acesso em: 18/07/2019.



















































