911-VILLA / VACO Design
Curadoria de María Francisca González

Descrição enviada pela equipe de projeto. Inspirada na Villa Savoye e na arquitetura vernacular do Vietnã, esta casa é vista como uma caixa de aço que repousa sobre pilares, liberando o espaço no térreo. O projeto é uma resposta ao estilo de vida contemporâneo do jovem profissional, que possui uma extensa coleção de carros no clima tropical da cidade de Ho Chi Minh.



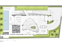
O subsolo tem capacidade para sete carros, com um pátio central para entrada de luz natural e ventilação. O acesso principal começa aqui, seguindo uma rampa através deste ambiente aberto repleto de vegetação, que conduz ao nível superior com a sala de estar, jantar e cozinha.

O térreo é aberto e completamente transparente, sem qualquer parede divisória, criando uma conexão visual interrupta. O espaço funcional foi projetado para estar diretamente aberto ao pátio e à paisagem circundante. A partir deste pavimento, os moradores podem ter uma visão da coleção de automóveis. A estrutura é minimizada, utilizando vigas de longo alcance, conferindo ao espaço abertura e elegância.

No jardim – principal espaço privado da família – está localizada a piscina, acessada diretamente pela cozinha e pela sala de jantar. O espaço é coberto com uma marquise para proteger do sol tropical, enquanto permite que os usuários experienciem os elementos naturais.



O projeto foi inspirado na tradição vietnamita. As roupas tradicionais são feitas com combinações de tecido fino em camadas, graciosas e reveladoras, uma resposta tanto à condição climática quanto à cortesia tradicional. A arquitetura vernacular vietnamita reflete o mesmo ethos. Os edifícios são cobertos com camadas de peles, feitas de madeira ou materiais naturais, ou estrategicamente envoltos por toldos, corredores e halls. Estes gestos também são uma resposta graciosa ao clima local com abundância de luz solar e chuva em uma cultura que valoriza a privacidade e a conexão entre o homem e a natureza.

Arquitetos: VACO Design
Área: 1083.0 m2
Ano: 2018
Fotografias: Quang Dam
Fabricantes: Saint-Gobain, District Eight, TAC, Schomburg, General Membrance, Blum, VACO, Galaxy lighting, Hygolet de México, Acor, DuPont, MIWA, Lumi, Vietceramics, Toto, M-Green, DHL
Disponível em: www.archdaily.com.br/br/912469. Acesso em: 05/12/2019.













































